1000 Arts - white logo
1000 Arts - mobile logo

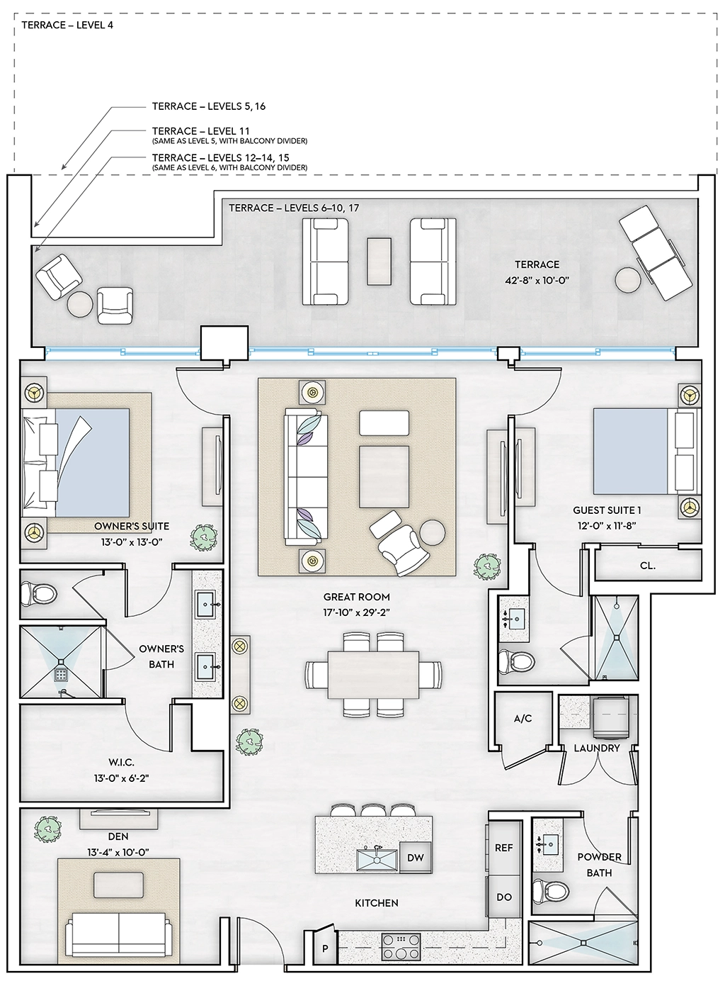
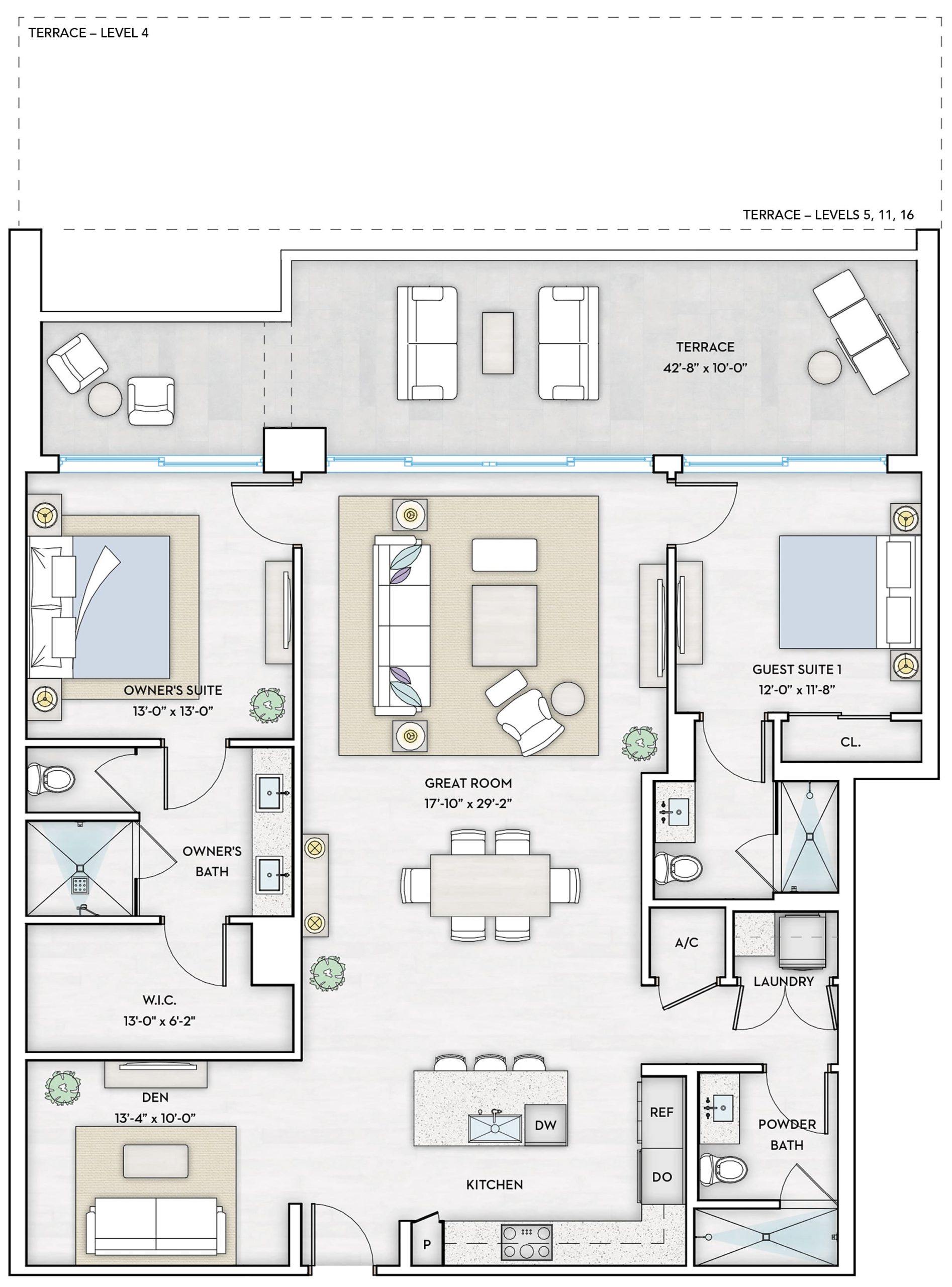
BAY 2 RESIDENCE

2 BEDROOMS + Den   |   3 BATHROOMS

Levels 4-17

Step into the expansive Great Room of the Bay 2 Residence, where a 42-foot terrace invites you to take in sweeping views of the 53-acre waterfront park, The Bay. Designed to integrate seamlessly with its surroundings, both the Owner’s Suite and Guest Suite offer direct access to the terrace, presenting the option for dual primary suites. Each bedroom features a spa-like ensuite bathroom, with the Owner’s Suite further enhanced by a spacious walk-in closet. The open-concept floorplan flows effortlessly from the Great Room into a gourmet kitchen, where an oversized island serves as the perfect centerpiece for both elegant entertaining and casual mornings. A versatile den offers a refined space for work or relaxation, while a thoughtfully placed guest bath adds convenience for hosting.

1000 Live of Arts Residence - BAY 2 - Floorplan Image
1000 Live of Arts elevation - BAY 2 - Floorplan Image


INTERIOR


TERRACE
LEVEL 4


TERRACE
LEVEL 5

TERRACE
LEVELS
6-10,17

TERRACE
LEVELS
11,16

TERRACE
LEVELS
12-14, 15

1,664 SQ FT

943 SQ FT

469 SQ FT

391 SQ FT

482 SQ FT

400 SQ FT

Total

2,607 SQ FT

2,133 SQ FT

2,055 SQ FT

2,146 SQ FT

2,064 SQ FT

SARASOTA’S ICON OF DESIGN AND DISTINCTION

The residences at 1000 Boulevard of the Arts transform exclusivity to an art form. Thoughtfully appointed features, designer-curated interiors, along with panoramic views create a living experience as refined as it is rare.

RESIDENCE FEATURES

  • Contemporary design and space planning in all 117 luxurious residences
  • Expansive, private terraces with glass balcony railings
  • 17 innovative 1- to 3-bedroom, plus den, designs ranging from 1,200 to over 3,000 sq. ft.
  • Ceiling heights up to 10’ and full-height sliding glass doors on Typical Levels (6–17). Ceilings on 4th and 5th Level reach up to 12’ in main living areas, and the top three residential Levels have ceiling heights up to 11’ in main living areas.
  • Designer-coordinated kitchens featuring European cabinetry, quartz countertops and premium stainless-steel Thermador® appliances
  • Laundry room with front load washer and dryer
  • Owners’ Suites include walk-in closets and luxurious spa-like bath retreats with glass wall partitions (per plan)
  • Bathrooms featuring European cabinetry, quartz countertops, lavish soaking tubs (per plan), one-piece toilet, Grohe® fixtures and semi-frameless

VIEW AMENITIES


request info banner